Ce lot n’est plus disponible chez VIANOVA ou est vendu.
Vous pouvez revenir dans 24h pour vérifier le stock à jour ou contacter un conseiller Vianova pour vérifier le stock en direct.
Vous pouvez également continuer votre recherche sur notre site « ici ».
331 000€
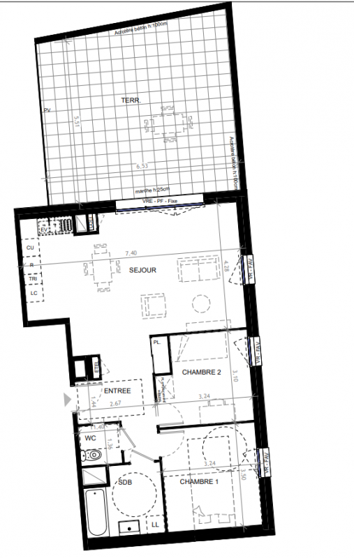
Appt. au 5ème
T3
67.39 m²
Nord
Angers (49000)
4ème trimestre 2028
01 81 80 39 10
Présentation du programme "EPURE - QUARTIER MONTAIGNE"
A seulement 1h30 de Paris, Angers séduit par sa qualité de vie, son attractivité économique et universitaire.
Idéalement située Rue Joseph Cussonneau, votre nouvelle résidence Vinci Immobilier s’inscrit au cœur du Quartier Montaigne, nouveau lieu de vie parfaitement connecté à la métropole, apprécié pour sa proximité avec le centre-ville, les transports, les écoles et les pôles d'activités.
La résidence propose des appartements du Studio au 4 pièces dotés de prestations soignées et de beaux espaces extérieurs. Des stationnements privatifs et des locaux vélos complètent les prestations.
À seulement 3 min à pied, l’arrêt de tramway Montaigne permet de rejoindre rapidement le centre-ville d’Angers et la gare SNCF Angers Saint-Laud en moins de 10 min. Le quartier est particulièrement recherché pour sa proximité immédiate avec les écoles, dont le collège Montaigne, accessible en moins de 5 min à pied, ainsi que les pôles universitaires facilement desservis en tramway et à vélo.
À proximité immédiate des commerces, des équipements sportifs et du centre commercial Espace Anjou, ce nouveau programme bénéficie également d’un accès rapide aux grands axes routiers A87/A11. Les cheminements piétons et pistes cyclables environnants favorisent les mobilités douces et un quotidien serein.
Autres logements T3 du programme "EPURE - QUARTIER MONTAIGNE"
| Disponibilité | Prix | No | Genre | Pièces | Surface | Étage | Disponibilité | Prix | ||
|---|---|---|---|---|---|---|---|---|---|---|
| Voir | Disponible | 278 900€ | A003 | Appt. | T3 | 62.58m2 | 0-RDC | Disponible | 278 900€ | Voir |
| Voir | Disponible | 277 200€ | A105 | Appt. | T3 | 60.21m2 | 1er | Disponible | 277 200€ | Voir |
| Voir | Disponible | 297 000€ | A106 | Appt. | T3 | 67.56m2 | 1er | Disponible | 297 000€ | Voir |
| Voir | Disponible | 283 400€ | A205 | Appt. | T3 | 59.88m2 | 2ème | Disponible | 283 400€ | Voir |
| Voir | Disponible | 306 000€ | A206 | Appt. | T3 | 67.56m2 | 2ème | Disponible | 306 000€ | Voir |
| Voir | Disponible | 289 200€ | A305 | Appt. | T3 | 60.21m2 | 3ème | Disponible | 289 200€ | Voir |
| Voir | Disponible | 312 000€ | A306 | Appt. | T3 | 67.56m2 | 3ème | Disponible | 312 000€ | Voir |
| Voir | Disponible | 294 800€ | A405 | Appt. | T3 | 59.75m2 | 4ème | Disponible | 294 800€ | Voir |
| Voir | Disponible | 270 400€ | B007 | Appt. | T3 | 62.46m2 | 0-RDC | Disponible | 270 400€ | Voir |
| Voir | Disponible | 243 500€ | B008 | Appt. | T3 | 55.21m2 | 0-RDC | Disponible | 243 500€ | Voir |
| Voir | Disponible | 273 200€ | B104 | Appt. | T3 | 60.42m2 | 1er | Disponible | 273 200€ | Voir |
| Voir | Disponible | 279 400€ | B107 | Appt. | T3 | 62.46m2 | 1er | Disponible | 279 400€ | Voir |
| Voir | Disponible | 282 800€ | B108 | Appt. | T3 | 63.59m2 | 1er | Disponible | 282 800€ | Voir |
| Voir | Disponible | 279 200€ | B204 | Appt. | T3 | 60.42m2 | 2ème | Disponible | 279 200€ | Voir |
| Voir | Disponible | 285 300€ | B207 | Appt. | T3 | 62.45m2 | 2ème | Disponible | 285 300€ | Voir |
| Voir | Disponible | 287 600€ | B208 | Appt. | T3 | 64.03m2 | 2ème | Disponible | 287 600€ | Voir |
| Voir | Disponible | 285 100€ | B304 | Appt. | T3 | 60.4m2 | 3ème | Disponible | 285 100€ | Voir |
| Voir | Disponible | 289 300€ | B307 | Appt. | T3 | 62.45m2 | 3ème | Disponible | 289 300€ | Voir |
| Voir | Disponible | 294 800€ | B308 | Appt. | T3 | 63.61m2 | 3ème | Disponible | 294 800€ | Voir |
| Voir | Disponible | 281 700€ | B401 | Appt. | T3 | 57.69m2 | 4ème | Disponible | 281 700€ | Voir |
| Voir | Disponible | 300 000€ | B402 | Appt. | T3 | 60.16m2 | 4ème | Disponible | 300 000€ | Voir |
| Voir | Disponible | 277 100€ | B403 | Appt. | T3 | 55.54m2 | 4ème | Disponible | 277 100€ | Voir |
| Voir | Disponible | 321 000€ | B404 | Appt. | T3 | 71.82m2 | 4ème | Disponible | 321 000€ | Voir |
| Voir | Disponible | 300 800€ | B406 | Appt. | T3 | 63.61m2 | 4ème | Disponible | 300 800€ | Voir |
| Voir | Disponible | 286 600€ | B501 | Appt. | T3 | 57.68m2 | 5ème | Disponible | 286 600€ | Voir |
| Voir | Disponible | 296 200€ | B502 | Appt. | T3 | 60.16m2 | 5ème | Disponible | 296 200€ | Voir |
| Voir | Disponible | 276 100€ | B503 | Appt. | T3 | 55.54m2 | 5ème | Disponible | 276 100€ | Voir |
| Voir | Disponible | 354 500€ | B504 | Appt. | T3 | 73.29m2 | 5ème | Disponible | 354 500€ | Voir |