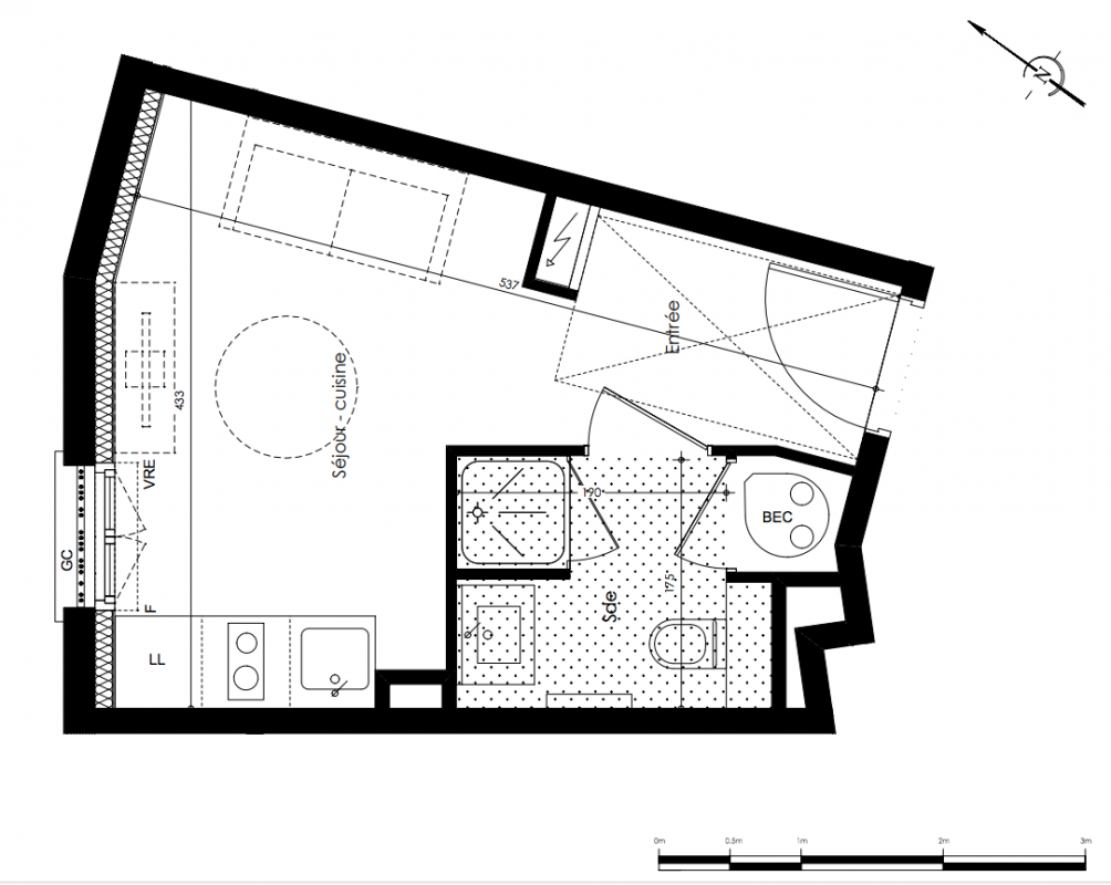
100 300€
Appt. au 0-RDC
Studio
17.98 m²
Nord
La Roche-sur-Yon (85000)
2ème trimestre 2028
01 81 80 39 10
Présentation du programme "Studio 27"
Vous souhaitez y habiter ? Vérifiez votre éligibilité au PTZ avec nos équipes !Vous souhaitez le mettre en location ? Vous avez le choix entre de la location nue ou meublée avec un pack gestionnaire. Contactez nos équipes pour une simulation.Investir à La Roche-sur-Yon, une ville attractive et en pleine croissance Ville jeune et dynamique avec 40 % de la population qui a moins de 30 ans, un vrai moteur pour l’économie locale.Capitale de la Vendée : cœur administratif, économique et culturel du département.Bassin d’emploi solide : plus de 50 000 emplois, porté par un tissu économique diversifié.Pôle universitaire reconnu : près de 12 000 étudiants (antenne de l’Université de Nantes et écoles spécialisées).Un fort potentiel locatif dans un cadre de vie recherché Localisation stratégique, plébiscitée par les étudiants et jeunes actifs.Offre meublée limitée en centre-ville : un déséquilibre favorable aux investisseurs.Marché locatif sécurisé : tension locative soutenue par la démographie et l’emploi.Ville à taille humaine : compromis idéal entre dynamisme urbain et qualité de vie. Commodités et transportsTransports en commun : arrêts de bus à proximité immédiate (lignes 3, 4, 5, 7, 12, 13, 14), ligne 4 directe vers les facultés.Gare SNCF à moins de 5 minutes, facilitant les déplacements régionaux.Accès rapide aux grands axes routiers vers Nantes, Angers et la côte vendéenne.Centre-ville accessible à pied : résidence située à courte distance de l’hyper-centre.Tous les commodités du quotidien sont à proximité immédiate Focus prestations/résidenceUne résidence à taille humaine, intégrée au tissu urbain proposant 52 logements optimisés, majoritairement des studios et des T1Des appartements entièrement meublés et prêts à louer (cuisine équipée, mobilier intégrés, salle d’eau moderne et coin bureauDes espaces communs et services pensés pour les usages actuels (laverie, espaces collectifs et concierge)Le + du programmeUn produit clé en main, pensé pour l’investissement locatif : logements meublés, fonctionnels et immédiatement exploitables.
Autres logements Studio du programme "Studio 27"
| Disponibilité | Prix | No | Genre | Pièces | Surface | Étage | Disponibilité | Prix | ||
|---|---|---|---|---|---|---|---|---|---|---|
| Voir | Disponible | 93 300€ | A126 | Appt. | Studio | 15.88m2 | 0-RDC | Disponible | 93 300€ | Voir |
| Voir | Disponible | 100 300€ | A123 | Appt. | Studio | 17.64m2 | 0-RDC | Disponible | 100 300€ | Voir |
| Voir | Disponible | 102 300€ | A220 | Appt. | Studio | 17.99m2 | 1er | Disponible | 102 300€ | Voir |
| Voir | Disponible | 102 300€ | A110 | Appt. | Studio | 18.82m2 | 0-RDC | Disponible | 102 300€ | Voir |
| Voir | Disponible | 103 300€ | A109 | Appt. | Studio | 18.92m2 | 0-RDC | Disponible | 103 300€ | Voir |
| Voir | Disponible | 104 300€ | A122 | Appt. | Studio | 19.11m2 | 0-RDC | Disponible | 104 300€ | Voir |
| Voir | Disponible | 106 300€ | A217 | Appt. | Studio | 19.22m2 | 1er | Disponible | 106 300€ | Voir |
| Voir | Disponible | 106 300€ | A124 | Appt. | Studio | 19.52m2 | 0-RDC | Disponible | 106 300€ | Voir |
| Voir | Disponible | 108 300€ | A219 | Appt. | Studio | 19.52m2 | 1er | Disponible | 108 300€ | Voir |
| Voir | Disponible | 109 000€ | A005 | Appt. | Studio | 20.49m2 | 0-RDC | Disponible | 109 000€ | Voir |
| Voir | Disponible | 109 000€ | A004 | Appt. | Studio | 20.48m2 | 0-RDC | Disponible | 109 000€ | Voir |
| Voir | Disponible | 109 300€ | A118 | Appt. | Studio | 20.08m2 | 0-RDC | Disponible | 109 300€ | Voir |
| Voir | Disponible | 111 000€ | A003 | Appt. | Studio | 20.06m2 | 0-RDC | Disponible | 111 000€ | Voir |
| Voir | Disponible | 111 300€ | A115 | Appt. | Studio | 20.5m2 | 0-RDC | Disponible | 111 300€ | Voir |
| Voir | Disponible | 111 300€ | A114 | Appt. | Studio | 20.48m2 | 0-RDC | Disponible | 111 300€ | Voir |
| Voir | Disponible | 112 300€ | A121 | Appt. | Studio | 20.57m2 | 0-RDC | Disponible | 112 300€ | Voir |
| Voir | Disponible | 112 300€ | A117 | Appt. | Studio | 20.66m2 | 0-RDC | Disponible | 112 300€ | Voir |
| Voir | Disponible | 112 300€ | A116 | Appt. | Studio | 20.65m2 | 0-RDC | Disponible | 112 300€ | Voir |
| Voir | Disponible | 112 300€ | A113 | Appt. | Studio | 20.66m2 | 0-RDC | Disponible | 112 300€ | Voir |
| Voir | Disponible | 112 300€ | A112 | Appt. | Studio | 20.65m2 | 0-RDC | Disponible | 112 300€ | Voir |
| Voir | Disponible | 112 300€ | A111 | Appt. | Studio | 20.68m2 | 0-RDC | Disponible | 112 300€ | Voir |
| Voir | Disponible | 113 300€ | A106 | Appt. | Studio | 20.2m2 | 0-RDC | Disponible | 113 300€ | Voir |
| Voir | Disponible | 113 300€ | A105 | Appt. | Studio | 20.06m2 | 0-RDC | Disponible | 113 300€ | Voir |
| Voir | Disponible | 113 300€ | A104 | Appt. | Studio | 20.06m2 | 0-RDC | Disponible | 113 300€ | Voir |
| Voir | Disponible | 113 300€ | A103 | Appt. | Studio | 20.06m2 | 0-RDC | Disponible | 113 300€ | Voir |
| Voir | Disponible | 113 300€ | A102 | Appt. | Studio | 20.06m2 | 0-RDC | Disponible | 113 300€ | Voir |
| Voir | Disponible | 114 300€ | A216 | Appt. | Studio | 20.68m2 | 1er | Disponible | 114 300€ | Voir |
| Voir | Disponible | 115 300€ | A206 | Appt. | Studio | 20.2m2 | 1er | Disponible | 115 300€ | Voir |
| Voir | Disponible | 115 300€ | A205 | Appt. | Studio | 20.06m2 | 1er | Disponible | 115 300€ | Voir |
| Voir | Disponible | 115 300€ | A204 | Appt. | Studio | 20.06m2 | 1er | Disponible | 115 300€ | Voir |
| Voir | Disponible | 115 300€ | A203 | Appt. | Studio | 20.06m2 | 1er | Disponible | 115 300€ | Voir |
| Voir | Disponible | 115 300€ | A202 | Appt. | Studio | 20.06m2 | 1er | Disponible | 115 300€ | Voir |
| Voir | Disponible | 118 000€ | A107 | Appt. | Studio | 21.37m2 | 0-RDC | Disponible | 118 000€ | Voir |
| Voir | Disponible | 118 500€ | A215 | Appt. | Studio | 21.62m2 | 1er | Disponible | 118 500€ | Voir |
| Voir | Disponible | 118 500€ | A120 | Appt. | Studio | 22.05m2 | 0-RDC | Disponible | 118 500€ | Voir |
| Voir | Disponible | 120 000€ | A207 | Appt. | Studio | 21.37m2 | 1er | Disponible | 120 000€ | Voir |
| Voir | Disponible | 124 000€ | A108 | Appt. | Studio | 23.94m2 | 0-RDC | Disponible | 124 000€ | Voir |
| Voir | Disponible | 126 000€ | A208 | Appt. | Studio | 24.94m2 Le bon plan | 1er | Disponible | 126 000€ | Voir |