Ce lot n’est plus disponible chez VIANOVA ou est vendu.
Vous pouvez revenir dans 24h pour vérifier le stock à jour ou contacter un conseiller Vianova pour vérifier le stock en direct.
Vous pouvez également continuer votre recherche sur notre site « ici ».
Prix
373 999€ (TVA 20%)
342 832€ (TVA 10%)
373 999€ (TVA 20%)
342 832€ (TVA 10%)
Type
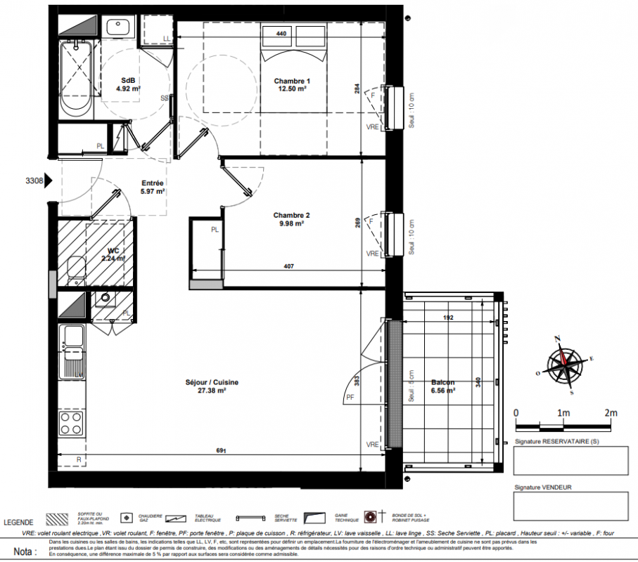
Appt. au 3ème
Appt. au 3ème
Pièces
T3
T3
Surface
62 m²
62 m²
Exposition
-
-
Ville
Pornichet (44380)
Pornichet (44380)
Livraison
2ème trimestre 2027
2ème trimestre 2027
Informations
01 81 80 39 10
01 81 80 39 10
Présentation du programme "CARAVELLE"
Devenez propriétaire de votre appart neuf : ON VOUS REMBOURSE JUSQU'A 500 euros PAR MOIS (1) pendant les 3 premières années + FRAIS DE NOTAIRE OFFERTS (2) jusqu'au 31 mars 2026.TRAVAUX EN COURS ! Votre appartement neuf à quelques minutes des halles de Pornichet, de la plage et de La Baule.
Au sein de son vaste espace vert préservé et paysager de 10 000 m , la résidence CARAVELLE propose des appartements du studio au 3 pièces aux surfaces confortables et dotés de beaux espaces extérieurs : jardins privatifs, balcons, terrasses.
CARAVELLE est un emplacement idéale pour tous les projets : résidence principale, résidence secondaire ou investissement en LMNP non-gérée avec notre solution de packs meubles.