232 200€
Appt. au 4ème
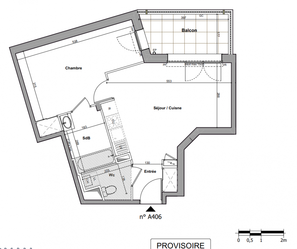
T2
45.79 m²
Nord-Ouest
Nantes (44000)
4ème trimestre 2027
01 81 80 39 10
Présentation du programme "Programme neuf Nantes (44000)"
BAISSE DE PRIX à NANTES pour l'achat de votre appartement neuf du 2 au 4 pièces avec espace extérieur et parking !Située dans un quartier prisé de Nantes, notre résidence est composée d’appartements du 2 au 4 pièces, tous prolongés d'espaces extérieurs donnant la possibilité d’étendre l’espace de vie. Pour assurer la tranquillité et la sécurité des résidents, des places de stationnement sont disponibles en sous-sol. En outre, pour encourager les déplacements doux et tirer parti du réseau cyclable de qualité, un local à vélos est à disposition au sein de la résidence. Bénéficiant d'une localisation privilégiée au sein d’un quartier familial et recherché, les résidents pourront profiter de belles balades le long des quais de la Loire et des espaces verts environnant. Ils trouveront tous les essentiels du quotidien à seulement quelques minutes à pied : commerces, pharmacie, boulangerie et établissements scolaires. Le centre-ville est à seulement 9 min en voiture et l’accès au périphérique Nantais à 7 min. Côté transport, l'arrêt de bus "Chambelles" de la ligne 10, au pied de la résidence, permet de rejoindre la gare de Nantes en 18 min. Contactez vite un de nos conseillers pour découvrir tous nos appartements neufs à Nantes et profitez de notre offre exclusive !
Autres logements T2 du programme "Programme neuf Nantes (44000)"
| Disponibilité | Prix | No | Genre | Pièces | Surface | Étage | Disponibilité | Prix | ||
|---|---|---|---|---|---|---|---|---|---|---|
| Voir | Disponible | 210 100€ | A201 | Appt. | T2 | 42.6m2 | 2ème | Disponible | 210 100€ | Voir |
| Voir | Disponible | 222 200€ | A206 | Appt. | T2 | 45.17m2 Le bon plan | 2ème | Disponible | 222 200€ | Voir |
| Voir | Optionné | 243 200€ | A304 | Appt. | T2 | 45.17m2 | 3ème | Optionné Mais pas encore vendu 😉 | 243 200€ | Voir |
| Voir | Disponible | 228 200€ | A305 | Appt. | T2 | 45.79m2 | 3ème | Disponible | 228 200€ | Voir |
| Voir | Disponible | 221 200€ | A403 | Appt. | T2 | 38.29m2 | 4ème | Disponible | 221 200€ | Voir |
| Voir | Disponible | 231 200€ | A405 | Appt. | T2 | 45.17m2 | 4ème | Disponible | 231 200€ | Voir |
| Voir | Optionné | 221 200€ | A501 | Appt. | T2 | 41.99m2 | 5ème | Optionné Mais pas encore vendu 😉 | 221 200€ | Voir |
| Voir | Disponible | 236 200€ | A505 | Appt. | T2 | 45.79m2 | 5ème | Disponible | 236 200€ | Voir |