Prix
249 268€
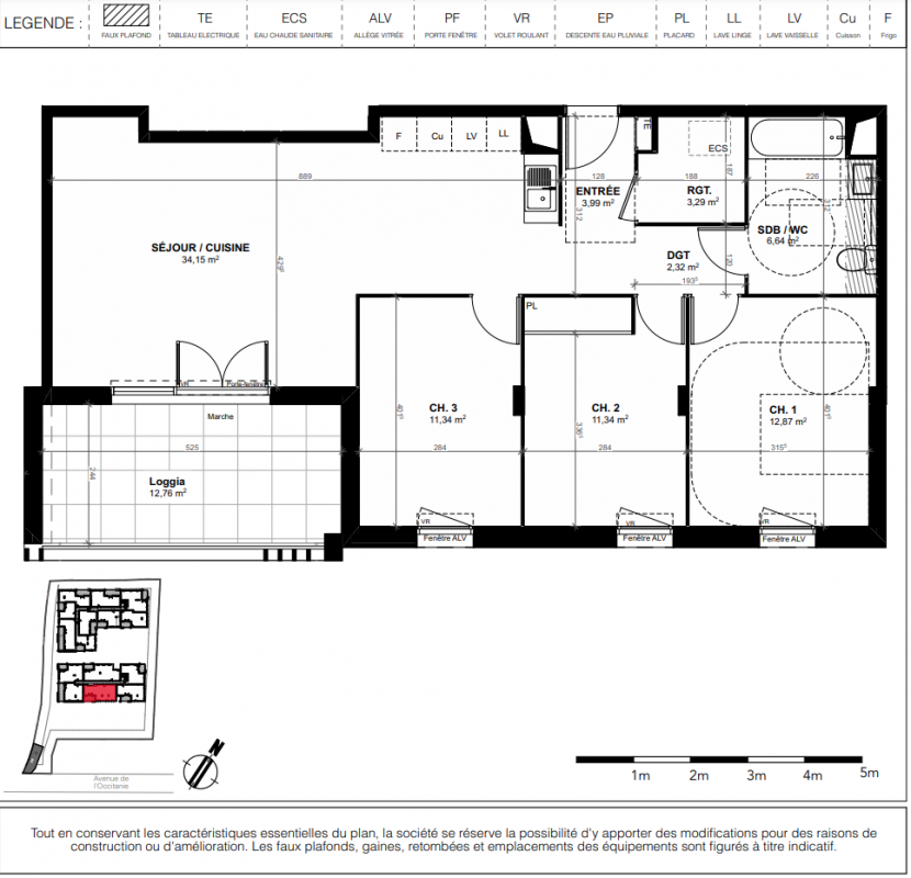
Type
Appt. au 1er
Pièces
T4
Surface
86.2 m²
Exposition
Sud-Est
Ville
Saint-Georges-d'Orques (34680)
Livraison
4ème trimestre 2025
Informations
01 81 80 39 10

Présentation du programme "LES ROCHES ROUGES II"

Secteur résidentiel composé de maisons individuelles et de petits collectifs. Commerces, services et écoles privées à moins de 3 mn à pied. À 600 m de la mairie et des commerces du centre de Saint-Georges-d¿Orques Domaines viticoles, centre équestre à moins de 2 km

Autres logements T4 du programme "LES ROCHES ROUGES II"

Disponibilité Prix Genre Pièces Surface Étage
Voir
Disponible
274 114€ Appt. T4 94.48m2 1er
Voir
Disponible
217 352€ Appt. T4 77.49m2 0-RDC
Voir
Disponible
316 433€ Appt. T4 102.06m2 2ème
DO NOT CLICK