253 000€
Appt. au 0-RDC
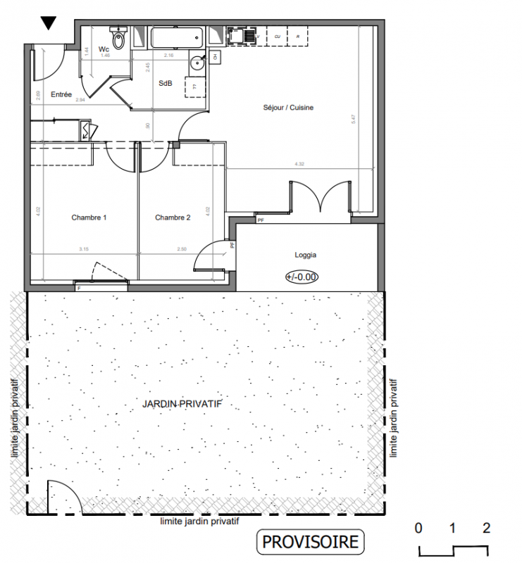
T3
63.29 m²
Sud-Ouest
Auzeville-Tolosane (31320)
4ème trimestre 2027
01 81 80 39 10
Présentation du programme "Programme neuf Auzeville-Tolosane (31320)"
Achetez votre appartement neuf à AUZEVILLE-TOLOSANE ! Votre 2 pièces à partir de 610 euros par mois. Votre 3 pièces à partir de 770 euros par mois.À seulement quelques kilomètres au sud de Toulouse, Auzeville-Tolosane séduit par son cadre verdoyant et son atmosphère paisible. Entre coteaux et Canal du Midi, cette commune huppée allie charme naturel et dynamisme urbain. Elle offre un cadre de vie préservé avec un cœur de ville convivial, des commerces de proximité, des établissements scolaires et des infrastructures de santé. Son accessibilité est optimale grâce aux grands axes routiers, comme l_A61 et la rocade, ainsi qu'à la ligne de bus 56 reliant l'Université Paul Sabatier et le métro ligne B. À proximité de pôles économiques majeurs tels qu'Enova-Labège et Airbus Défense & Space, elle attire aussi bien les familles que les actifs en quête de sérénité. Auzeville-Tolosane est également une ville étudiante dynamique, accueillant plus de 2 600 étudiants, apprentis et chercheurs au sein de trois pôles d'enseignement supérieur. Elle se distingue notamment par son campus dédié aux sciences du vivant, qui regroupe des établissements de renom tels que l'ENFA (École Nationale de Formation Agronomique), l'ENSAT (École Nationale Supérieure Agronomique de Toulouse) et la Cité des Sciences Vertes. Cet environnement académique spécialisé renforce l'attractivité de la commune auprès des étudiants et des jeunes actifs en formation. Au nord de la commune, l'écoquartier Argento s'impose comme un modèle d'urbanisme durable, intégrant harmonieusement habitations, nature et services de proximité. Ce quartier en plein essor conjugue tranquillité et praticité, avec des espaces verts aménagés, des allées piétonnes et un accès rapide aux commerces, écoles et infrastructures médicales. Son emplacement en hauteur offre des vues dégagées sur les coteaux environnants et garantit un cadre de vie agréable et préservé. Nichée au cœur de cet environnement privilégié, la résidence propose un habitat élégant et intimiste. Ses appartements aux lignées épurées s'intègrent parfaitement dans leur écrin naturel. Les logements, du 2 au 4 pièces, sont lumineux et bien agencés, prolongés par de belles loggias offrant des perspectives dégagées. La résidence dispose également de 55 places de stationnement en sous-sol, assurant confort et sécurité à ses résidents.Pensée pour favoriser le bien-être et la sérénité de ses habitants, la résidence bénéficie de
Autres logements T3 du programme "Programme neuf Auzeville-Tolosane (31320)"
| Disponibilité | Prix | No | Genre | Pièces | Surface | Étage | Disponibilité | Prix | ||
|---|---|---|---|---|---|---|---|---|---|---|
| Voir | Disponible | 245 000€ | B003 | Appt. | T3 | 63.29m2 | 0-RDC | Disponible | 245 000€ | Voir |
| Voir | Disponible | 230 000€ | B007 | Appt. | T3 | 57.27m2 | 0-RDC | Disponible | 230 000€ | Voir |
| Voir | Disponible | 240 000€ | B103 | Appt. | T3 | 63.29m2 | 1er | Disponible | 240 000€ | Voir |
| Voir | Disponible | 249 000€ | B104 | Appt. | T3 | 63.29m2 | 1er | Disponible | 249 000€ | Voir |
| Voir | Disponible | 248 000€ | B108 | Appt. | T3 | 63.07m2 | 1er | Disponible | 248 000€ | Voir |
| Voir | Disponible | 238 000€ | B109 | Appt. | T3 | 62.82m2 Le bon plan | 1er | Disponible | 238 000€ | Voir |
| Voir | Disponible | 244 000€ | B203 | Appt. | T3 | 63.31m2 | 2ème | Disponible | 244 000€ | Voir |
| Voir | Disponible | 254 000€ | B204 | Appt. | T3 | 63.31m2 | 2ème | Disponible | 254 000€ | Voir |
| Voir | Disponible | 253 000€ | B207 | Appt. | T3 | 63.15m2 | 2ème | Disponible | 253 000€ | Voir |
| Voir | Disponible | 243 000€ | B208 | Appt. | T3 | 62.83m2 | 2ème | Disponible | 243 000€ | Voir |