Prix
148 140€
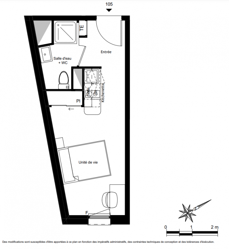
Type
Appt. au 1er
Pièces
Studio
Surface
20.5 m²
Exposition
Sud
Ville
Talence (33400)
Livraison
2ème trimestre 2027
Informations
01 81 80 39 10

Présentation du programme "All Suites Coliving"

Une ville au cadre de vie agréable Ville verte avec plus de 30 hectares de parcs et jardins et le Bois de Thouars, offrant un cadre de vie agréable.Proximité immédiate de Bordeaux, métropole attractive et en forte croissance, avec un écosystème économique de 77 000 entreprises. Un emplacement stratégique apprécié des étudiants  4ème ville de l’agglomération bordelaise, est un pôle universitaire dynamique avec plus de 105 000 étudiants.Un environnement attractif pour les étudiants : commerces, restaurants, infrastructures sportives, espaces verts. Commodités et transport La résidence est située à 5 km du centre-ville de Bordeaux, accessible en 13 min en tramway B.Toutes les commodités sont à proximité directes (supermarchés, parcs et espaces verts, cinéma, équipements sportifs...).Le pôle universitaire de Bordeaux, KEDGE Business School et autres grandes écoles sont accessibles en quelques minutes. Focus Prestations/RésidenceUn concept de coliving moderne et clé en main conçu pour les jeunes actifs et étudiants recherchant confort et flexibilité.Logements entièrement équipés : kitchenette avec électroménager, salle d’eau privative, mobilier moderne, rangements optimisés.Espaces communs conviviaux et connectés :     - Salle polyvalente avec cuisine collaborative, coworking, TV, jeux.     - Boulodrome et espace extérieur en cœur d’îlot pour des moments de partage.     - Véhicule électrique en autopartage, parkings sécurisés, local à vélos.     - Sécurité assurée : accès badge et vidéosurveillance. 

Autres logements Studio du programme "All Suites Coliving"

Disponibilité Prix Genre Pièces Surface Étage
Voir
Disponible
150 540€ Appt. Studio 22m2 1er
DO NOT CLICK