250 000€ (TVA 20%)
229 167€ (TVA 10%)
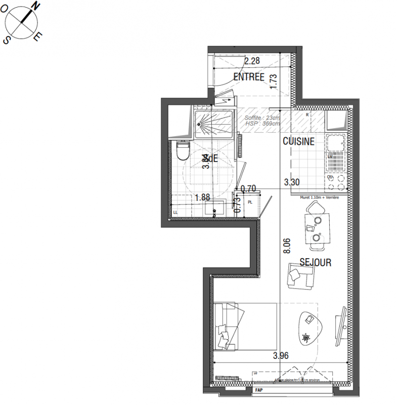
Appt. au 0-RDC
Studio
36 m²
Sud-Est
Viroflay (78220)
1er trimestre 2028
01 81 80 39 10
Présentation du programme "LE CLOS HERBRON"
Idéalement située au sein d'un quartier résidentiel recherché et parfaitement desservi, la résidence se trouve à proximité immédiate des commerces, des établissements scolaires et à seulement quelques minutes à pied de la gare « Viroflay Rive Gauche », offrant un accès rapide vers Paris (moins de 20 min) et Versailles (5 min). Cette résidence élégante et intimiste se compose d'un immeuble à l'architecture contemporaine et soignée ainsi que de deux maisons de ville avec accès indépendant. Du studio au 5 pièces, chaque logement offre de belles prestations et de généreux espaces extérieurs (balcons, loggias, terrasses ou jardins privatifs), pensés pour un confort de vie optimal. Une adresse rare, mêlant qualité architecturale, environnement privilégié et accessibilité directe aux bassins d'emploi de l'Ouest parisien. Contactez nous dès maintenant pour être les premiers informés ! Pour toutes informations complémentaires, prenez contact avec nous !