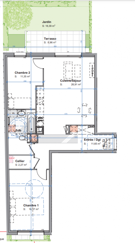
Prix
249 900€
249 900€
Type
Appt. au 0-RDC
Appt. au 0-RDC
Pièces
T3
T3
Surface
75.9 m²
75.9 m²
Exposition
-
-
Ville
Rambouillet (78120)
Rambouillet (78120)
Livraison
1er trimestre 2026
1er trimestre 2026
Informations
01 81 80 39 10
01 81 80 39 10
Présentation du programme "Harmonie"