Prix
384 796€
Type
Appt. au 4ème
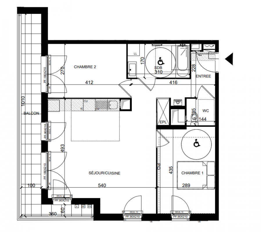
Pièces
T3
Surface
65.73 m²
Exposition
-
Ville
Poissy (78300)
Livraison
4ème trimestre 2028
Informations
01 81 80 39 10

Présentation du programme "LISIERE DES LOGES"

GRAND LANCEMENT LE 25 AVRIL ! Frais de Notaire offerts + Remise de 3 000 euros par pièce *

À Poissy, au 10-12 avenue de Pontoise, découvrez Lisière des Loges, un programme immobilier neuf en TVA 5,5 %, offrant une réelle opportunité d'accession à la propriété à proximité de Paris. Cette résidence à taille humaine propose 30 logements du 2 au 4 pièces avec 45 places de stationnement sécurisées et un grand local à vélo, un confort rare sur le secteur.

Les appartements, majoritairement des 3 pièces adaptés à la vie familiale, bénéficient pour la plupart de doubles orientations, favorisant la luminosité naturelle tout au long de la journée. Certains logements profitent de vues dégagées sur des espaces verts (stade), sans vis-à-vis direct.

Un emplacement pratique et connecté : Gare de Poissy (RER A et Transilien J) permettant de rejoindre Paris et La Défense - Accès rapide aux axes A13 / A14 - Arrêt de Bus à 2 minutes à pied - Commerces de proximité accessibles à pied (boucherie, épicerie, supermarché...).

Un quotidien facilité : Écoles, collèges et lycées à proximité - Équipements sportifs immédiats (stade, tennis, piscine) - Proximité de la forêt de Saint-Germain-en-Laye.

Des prestations fonctionnelles : Résidence sécurisée (digicode, vidéophone) - Stationnement en sous-sol et en rez-de-chaussée - Local à vélos avec accès indépendant - Construction conforme à la RE2020.

Grâce à la TVA réduite et aux frais de notaire offerts pour les 5 premiers réservataires, ce programme constitue une solution idéale pour un premier achat ou un investissement en Île-de-France.

Contactez-nous dès maintenant au 01 87 522 522 pour plus d'informations et étudier votre projet immobilier.

Autres logements T3 du programme "LISIERE DES LOGES"

Disponibilité Prix Genre Pièces Surface Étage
Voir
Disponible
358 066€ Appt. T3 62.2m2 5ème
Voir
Disponible
346 464€ Appt. T3 65.34m2 1er
Voir
Disponible
352 265€ Appt. T3 65.34m2 2ème
Voir
Disponible
356 929€ Appt. T3 65.34m2 3ème
Voir
Disponible
358 066€ Appt. T3 65.34m2 4ème
Voir
Disponible
375 469€ Appt. T3 65.73m2 2ème
Voir
Disponible
381 270€ Appt. T3 65.73m2 3ème
Voir
Disponible
369 668€ Appt. T3 65.73m2 1er
Voir
Disponible
341 915€ Appt. T3 66.67m2 2ème
Voir
Disponible
352 265€ Appt. T3 66.67m2 3ème
Voir
Disponible
356 929€ Appt. T3 66.67m2 4ème
Voir
Disponible
340 664€ Appt. T3 66.67m2 1er
Voir
Disponible
343 052€ Appt. T3 67.04m2
Le bon plan
2ème
Voir
Disponible
349 991€ Appt. T3 67.04m2 3ème
Voir
Disponible
363 867€ Appt. T3 67.04m2 4ème
Voir
Disponible
352 607€ Appt. T3 67.38m2 2ème
Voir
Disponible
343 052€ Appt. T3 67.38m2 3ème
Voir
Disponible
349 991€ Appt. T3 67.38m2 4ème
Voir
Disponible
340 664€ Appt. T3 67.38m2 1er
Voir
Disponible
416 076€ Appt. T3 69.14m2 5ème
Voir
Disponible
381 270€ Appt. T3 69.27m2 5ème
Voir
Disponible
334 863€ Appt. T3 64.62m2 1er
DO NOT CLICK