Prix
317 000€
Type
Appt. au -
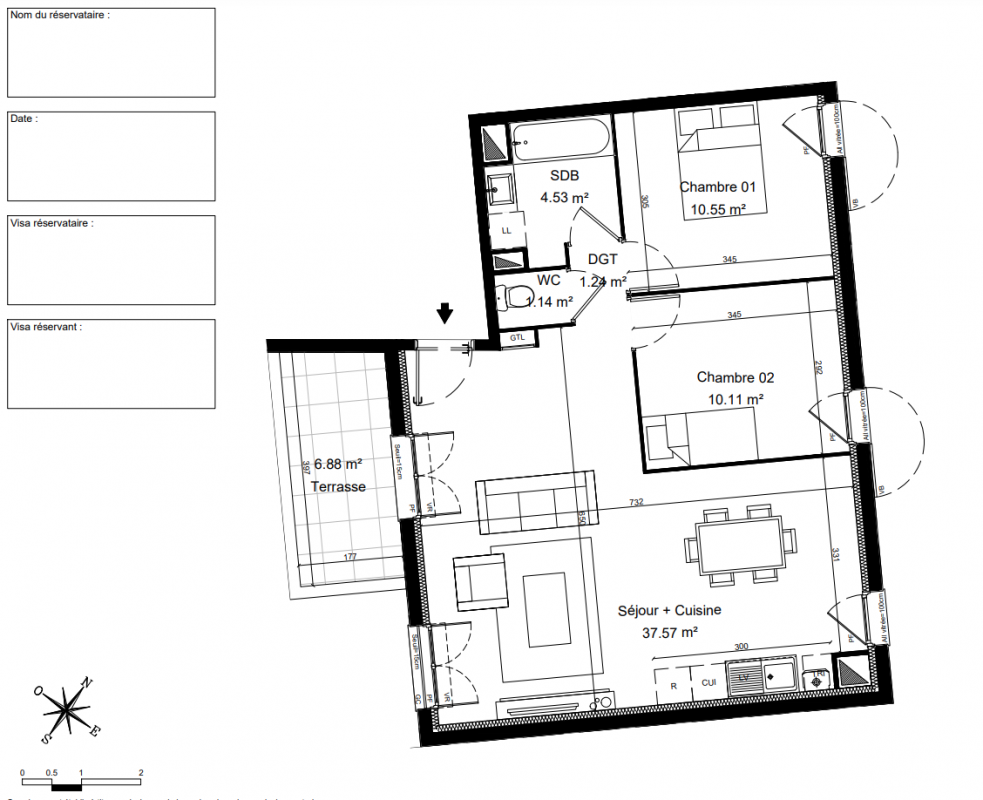
Pièces
T3
Surface
65.14 m²
Exposition
Sud-Ouest
Ville
Morainvilliers (78630)
Livraison
-
Informations
01 81 80 39 10

Présentation du programme "L'Orée du Château"

Inspirée d’une architecture contemporaine mais aussi de l’image traditionnelle du village, «L’Orée du Château» est un programme exceptionnel de 18 maisons individuelles allant du 4 au 6 pièces et de 25 appartements allant du 2 au 4 pièces.Idéalement situé en plein cœur d’un bourg battant autour des écoles, de la crèche, des commerces de proximité, d’un pôle de santé et d’un château tout juste restauré pour accueillir la Mairie, ce programme a été pensé pour vous, avec des pièces confortables, des séjours lumineux et des espaces extérieurs avec comme seul objectif de vous offrir une qualité de vie exceptionnelle, alliant douceur de vivre et bien-être dans un environnement soigné.*conditions en espace de vente ou auprès de votre conseiller

Autres logements T3 du programme "L'Orée du Château"

Disponibilité Prix Genre Pièces Surface Étage
Voir
Disponible
318 000€ Appt. T3 69.12m2 -
Voir
Disponible
304 000€ Appt. T3 62.41m2 -
DO NOT CLICK