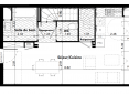
359 900€
Maison au 0-RDC
T4
82.24 m²
-
Gargenville (78440)
2ème trimestre 2028
01 81 80 39 10
Présentation du programme "LES SARMENTS"
Découvrez « LES SARMENTS », un projet immobilier neuf pensé pour offrir un confort durable et un cadre de vie de qualité. Ce programme se distingue par son mode constructif innovant, reposant sur une construction modulaire en bois naturel intégrant la technologie Vestack, en copromotion avec ce spécialiste de la construction hors-site et bas-carbone.
Le programme se compose :
• d'appartements du 2 au 4 pièces,
• de maisons de 4 et 5 pièces.
Les logements bénéficient de plans traversants Est-Ouest, favorisant la luminosité naturelle et le confort au quotidien.
« LES SARMENTS » s'inscrit dans une démarche environnementale ambitieuse et bénéficie des labellisations suivantes :
• RE 2020 - seuil 2028,
• Label BiodiverCity,
• NF Habitat...
Le projet intègre un coeur d'îlot végétalisé et une implantation des bâtiments pensée pour maximiser l'ensoleillement et dégager des vues lointaines.
Idéalement situé, le programme prend place au coeur d'un quartier résidentiel et bénéficie d'une proximité immédiate de la gare, accessible en 5 minutes à pied facilitant les déplacements du quotidien.
Contactez-nous dès à présent pour en savoir plus.
Autres logements T4 du programme "LES SARMENTS"
| Disponibilité | Prix | No | Genre | Pièces | Surface | Étage | Disponibilité | Prix | ||
|---|---|---|---|---|---|---|---|---|---|---|
| Voir | Disponible | 302 900€ | B01 | Appt. | T4 | 78.82m2 | 0-RDC | Disponible | 302 900€ | Voir |
| Voir | Optionné | 308 900€ | B11 | Appt. | T4 | 78.82m2 | 1er | Optionné Mais pas encore vendu 😉 | 308 900€ | Voir |
| Voir | Disponible | 309 900€ | A01 | Appt. | T4 | 78.82m2 | 0-RDC | Disponible | 309 900€ | Voir |
| Voir | Disponible | 315 900€ | A11 | Appt. | T4 | 78.82m2 | 1er | Disponible | 315 900€ | Voir |
| Voir | Disponible | 319 900€ | A21 | Appt. | T4 | 78.82m2 | 2ème | Disponible | 319 900€ | Voir |
| Voir | Disponible | 312 900€ | B21 | Appt. | T4 | 78.82m2 | 2ème | Disponible | 312 900€ | Voir |
| Voir | Disponible | 349 900€ | M05 | Maison | T4 | 82.24m2 | 0-RDC | Disponible | 349 900€ | Voir |
| Voir | Optionné | 359 900€ | M06 | Maison | T4 | 82.24m2 | 0-RDC | Optionné Mais pas encore vendu 😉 | 359 900€ | Voir |
| Voir | Optionné | 359 900€ | M07 | Maison | T4 | 82.24m2 | 0-RDC | Optionné Mais pas encore vendu 😉 | 359 900€ | Voir |

