Prix
250 000€
Type
Appt. au 1er
Pièces
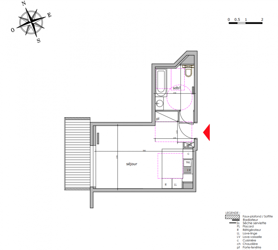
Studio
Surface
29.08 m²
Exposition
-
Ville
Saint-Maur-des-Fossés (94100)
Livraison
3ème trimestre 2027
Informations
01 81 80 39 10

Présentation du programme "Villa Navona"

L'art de vivre à la VarenneVilla Navona, nouvel immeuble de standing érigé au sein du prestigieux quartier de la Varenne Saint-Hilaire, incarne le mariage parfait entre le charme intemporel de ce petit coin de presqu’île et une architecture tout en finesse et générosité. La noblesse de l’écriture architecturale est rythmée par les généreuses terrasses dont bénéficie chacun des logements de cette résidence intimiste. Au travers d’élégantes façades en pierre naturelle, les larges baies vitrées favorisent des intérieurs baignés de lumière. Son nom, hommage à la célèbre place romaine, reflète l’élégance et la douceur de son cadre de vie. A proximité immédiate des berges aménagées de la Marne, contemplez le calme de belles balades bucoliques. La rue Saint-Hilaire vous garantira la chaleur d’une vie de quartier animée. Dès 2026, grâce à la transformation du marché couvert de la Varenne, vous profiterez de l’une des halles gourmandes les plus prisées de la région parisienne. A 5 km du bois de Vincennes et avec une liaison à Paris renforcée par l’arrivée du Grand Paris Express à Saint-Maur-des-Fossés, cet emplacement privilégié offrira une praticité au quotidien, tant pour la vie professionnelle que pour la vie de famille.

Autres logements Studio du programme "Villa Navona"

Pas de logements disponibles
DO NOT CLICK