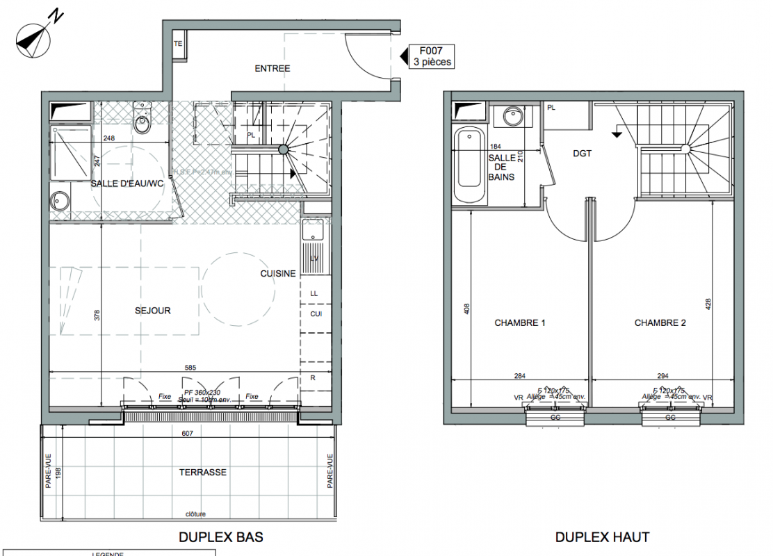
390 000€
Appt. au 0-RDC
T3
69.1 m²
-
Saint-Leu-la-Forêt (95320)
1er trimestre 2026
01 81 80 39 10
Présentation du programme "Les Allées Claire Fontaine"
Battant au rythme d'une ambiance villageoise des plus agréables, le coeur historique de Saint-Leu-la-Forêt a su préserver son authenticité. Ludothèque, école de musique, courts de tennis, complexe sportif rivalisent de proximité. Côté nature, le parc du Charme au Loup et la forêt de Montmorency promettent évasion et détente. Idéalement située dans le centre ville, à l'angle de l'avenue de la Gare et de la rue du Général Leclerc, tout est à proximité des Allées Claire Fontaine : gare, écoles et groupe scolaire, lycée, supermarché et marché... Sublimée par des matériaux nobles et des coeurs d'ilot végétalisés, Les Allées Claire Fontaine se compose de 8 résidences intimistes abritant chacune entre 7 et 33 appartements. Cet ensemble résidentiel est traversée par une sente verdoyante qui invite à la promenade et relie le centre-ville au parc du Charme au Loup. Rythmée par 2 agréables placettes et une place arborée avec de nouveaux commerces, c'est un haut-lieu de convivialité et de rencontres entre Saint Loupiens, participant ainsi au bien vivre ensemble. Déclinées du studio au 5 pièces, dont des duplex, Les Allées Claire Fontaine assurent à chacun de trouver son logement idéal : un appartement spacieux, ouvert par de grandes fenêtres sur la nature ou plutôt l'esprit cosy d'un dernier étage. Doubles expositions, espaces généreux, extérieurs privatifs et prestations soignées, la qualité se décline à chaque instant dans ces appartements pensés pour le confort des résidents.
Autres logements T3 du programme "Les Allées Claire Fontaine"
| Disponibilité | Prix | No | Genre | Pièces | Surface | Étage | Disponibilité | Prix | ||
|---|---|---|---|---|---|---|---|---|---|---|
| Voir | Disponible | 375 000€ | F303 | Appt. | T3 | 60.15m2 | 3ème | Disponible | 375 000€ | Voir |
| Voir | Optionné | 364 000€ | C302 A | Appt. | T3 | 55m2 | 3ème | Optionné Mais pas encore vendu 😉 | 364 000€ | Voir |
| Voir | Disponible | 367 000€ | C101 B | Appt. | T3 | 57.95m2 | 1er | Disponible | 367 000€ | Voir |