Prix
490 999€
Type
Appt. au 3ème
Pièces
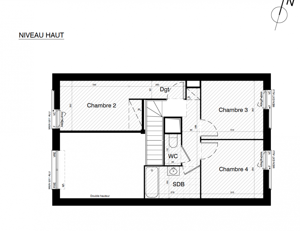
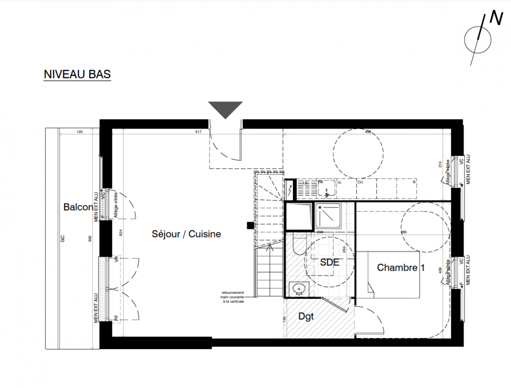
T5
Surface
99 m²
Exposition
Nord
Ville
Noisy-le-Grand (93160)
Livraison
3ème trimestre 2027
Informations
01 81 80 39 10

Présentation du programme "ARBORESENS"

Devenez propriétaire face à la Marne, à 15 min de Paris et profitez des FRAIS DE NOTAIRE OFFERTS* ! Au coeur du nouvel écoquartier de l'Ile de la Marne, à Noisy-le-Grand, découvrez "ARBORESENS", la nouvelle résidence signée Groupe Edouard Denis. La résidence profite d'une adresse rare, face aux berges de la Marne et à proximité immédiate d'un vaste parc paysager.Vous y profiterez d'un cadre verdoyant, tout en restant parfaitement connecté à la vie urbaine. Transports en commun (RER A et bientôt, lignes 15 et 16 du Grand Paris Express), centre-ville, écoles, espaces culturels et sportifs, centre commercial régional Les Arcades (130 boutiques) quelle que soit votre situation (seul, en couple, famille), tous les centres d'intérêt sont accessibles dans un rayon de 20min à pied. Dans ce cadre d'exception, faites le choix d'habiter ou d'investir parmi une large gamme d'appartements neufs du 2 au 5 pièces, dont certains en duplex. La plupart des logements se prolongent par de belles terrasses ou des balcons, offrant une luminosité naturelle remarquable en toute saison.
Pour toutes informations complémentaires, prenez contact avec nous !
*Voir conditions sur notre site internet.

Autres logements T5 du programme "ARBORESENS"

Disponibilité Prix Genre Pièces Surface Étage
Voir
Disponible
487 000€ Appt. T5 103m2
Le bon plan
2ème
DO NOT CLICK