237 725€ (TVA 20%)
209 000€ (TVA 5.5%)
Appt. au 4ème
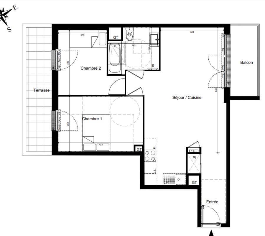
T3
61 m²
-
Drancy (93700)
3ème trimestre 2027
01 81 80 39 10
Présentation du programme "L'essentiel"
FRAIS DE NOTAIRE OFFERTS - TVA 5,5% - BRS RESIDENCE L'essentiel A DRANCY (93)RENDEZ-VOUS DANS NOTRE ESPACE DE VENTE : 133 rue Sadi Carnot à Drancy.Découvrez L'essentiel, notre nouvelle résidence idéalement située dans une commune dynamique et pleine de charme. Drancy bénéficie d'une position stratégique à mi-chemin entre le coeur de Paris et l'aéroport Charles-de-Gaulle.VOTRE CADRE DE VIE :- Plus de 33 hectares d'espaces verts dont le Parc de Ladoucette.- Ville labellisée "Ville Fleurie" depuis 2008 pour un environnement agréable.- Patrimoine riche avec le Château de Ladoucette et la Cité de la Muette.TRANSPORTS ET CONNECTIVITÉ :- RER B (Gare de Drancy) : rejoignez Paris Gare du Nord en seulement 15 minutes.- Desserte complète par bus et tramway pour vos trajets quotidiens.- Futur Grand Paris Express pour une valorisation de votre patrimoine.AVANTAGES FINANCIERS :- Accession à la propriété via le dispositif BRS (Bail Réel Solidaire).- TVA réduite à 5,5% pour l'achat de votre résidence principale.- FRAIS DE NOTAIRE OFFERTS sur votre projet immobilier.Contactez nos conseillers pour découvrir les plans et les conditions d'éligibilité. *Les prix tiennent compte de la TVA réduite. Voir conditions auprès de nos conseillers.
Autres logements T3 du programme "L'essentiel"
| Disponibilité | Prix | No | Genre | Pièces | Surface | Étage | Disponibilité | Prix | ||
|---|---|---|---|---|---|---|---|---|---|---|
| Voir | Disponible | 255 924€ | A004 | Appt. | T3 | 64.8m2 | 0-RDC | Disponible | 255 924€ | Voir |
| Voir | Disponible | 243 412€ | A201 | Appt. | T3 | 65.8m2 | 2ème | Disponible | 243 412€ | Voir |
| Voir | Disponible | 246 825€ | A203 | Appt. | T3 | 64.8m2 | 2ème | Disponible | 246 825€ | Voir |
| Voir | Disponible | 233 175€ | A210 | Appt. | T3 | 65.2m2 | 2ème | Disponible | 233 175€ | Voir |
| Voir | Disponible | 266 161€ | A302 | Appt. | T3 | 68.6m2 Le bon plan | 3ème | Disponible | 266 161€ | Voir |
| Voir | Disponible | 263 886€ | A304 | Appt. | T3 | 68.2m2 | 3ème | Disponible | 263 886€ | Voir |
| Voir | Disponible | 238 863€ | A305 | Appt. | T3 | 65.2m2 | 3ème | Disponible | 238 863€ | Voir |
| Voir | Disponible | 257 062€ | A402 | Appt. | T3 | 68.6m2 | 4ème | Disponible | 257 062€ | Voir |
| Voir | Disponible | 242 275€ | A404 | Appt. | T3 | 63m2 | 4ème | Disponible | 242 275€ | Voir |