Prix
244 000€
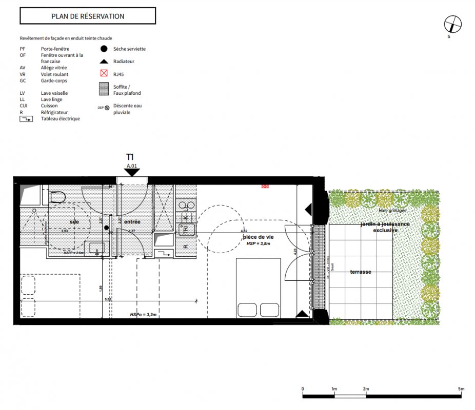
Type
Appt. au 0-RDC
Pièces
Studio
Surface
37.2 m²
Exposition
-
Ville
Aubervilliers (93300)
Livraison
1er trimestre 2028
Informations
01 81 80 39 10

Présentation du programme "CARACTÈRE"

[ OFFRE EXCLUSIVE* ] // AUBERVILLIERS – Devenez propriétaire de votre résidence principale à un prix inférieur au marché grâce au dispositif ANRU, permettant de bénéficier d’une TVA à 5,5 %. Profitez également d’une offre exclusive comprenant les frais de notaire offerts et 2 000 € de remise par pièce.

La résidence CARACTÈRE bénéficie d’un emplacement privilégié, en retrait de la rue, dans un environnement où tout est accessible à pied et où les aménagements paysagers contribuent pleinement au bien-être quotidien. Elle propose des appartements confortables du studio au 5 pièces duplex, dotés de grands espaces extérieurs et de vues dégagées, au sein d’une architecture contemporaine aux teintes sable.

À quelques pas de Paris, Aubervilliers poursuit sa transformation, renforçant son attractivité résidentielle.

L’arrivée de nouvelles lignes de métro, la future gare du Grand Paris Express, le Campus Condorcet — l’un des principaux pôles européens de recherche en sciences humaines et sociales — participent à l’amélioration durable de l’accessibilité du territoire. Après le réaménagement des berges du canal Saint-Denis et du cœur de ville, le Fort d’Aubervilliers est à son tour en plein renouveau, offrant une qualité de vie urbaine et familiale entre arts, sport et nature.

*Prix affichés en TVA 5,5 %. Voir les conditions sur la page Mentions légales de notre site Vianova.fr.

Vous avez plutôt un projet d’investissement locatif ? Le dispositif LMNP est également possible.

Contactez nos conseillers Lamotte à PARIS ou rendez-vous sur LAMOTTE.FR pour en savoir plus.

Autres logements Studio du programme "CARACTÈRE"

Pas de logements disponibles
DO NOT CLICK