Prix
728 000€
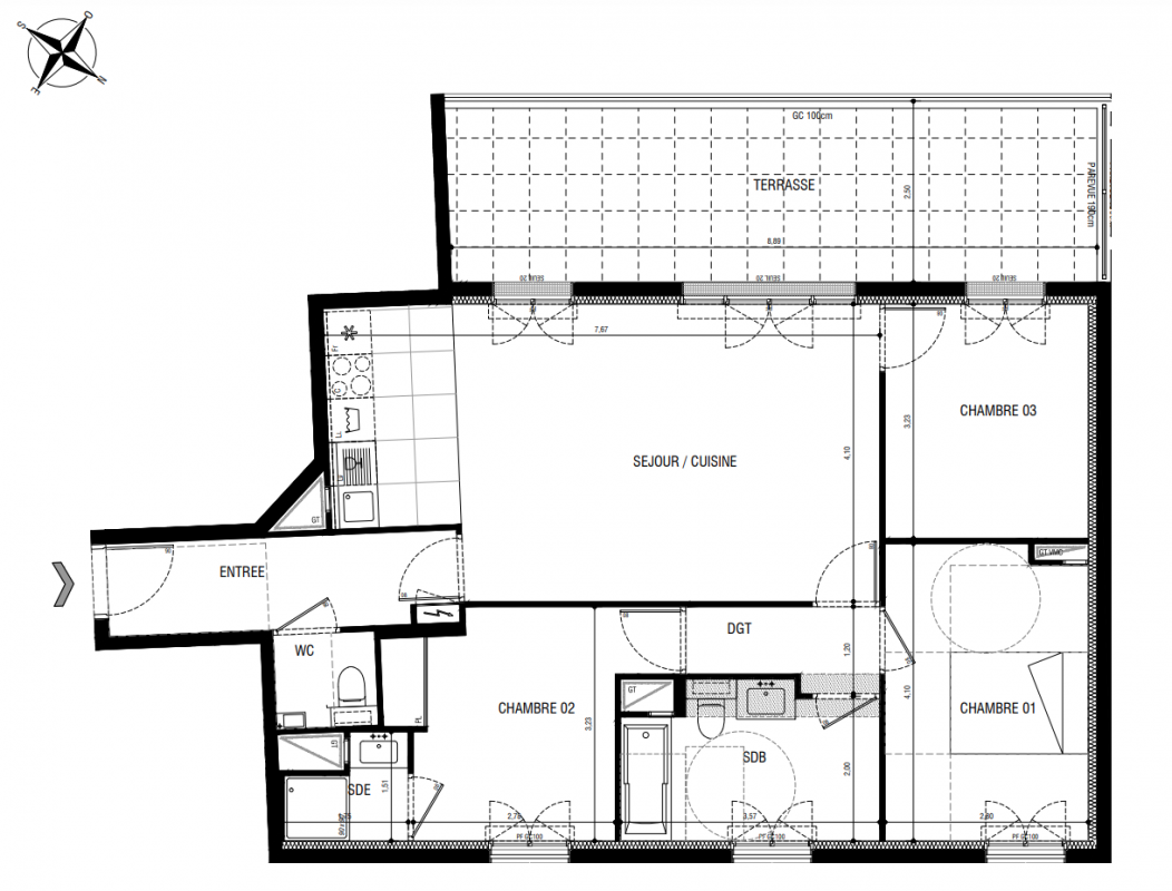
Type
Appt. au 1er
Pièces
T4
Surface
79.43 m²
Exposition
-
Ville
Rueil-Malmaison (92500)
Livraison
4ème trimestre 2026
Informations
01 81 80 39 10

Présentation du programme "EMBLEME"


Revêtement de sol en parquet massif
Menuiseries extérieures et tablier du volet roulant électrique en aluminium
Chauffage et eau chaude sanitaire assurés par une pompe à chaleur 100% électrique
Cœur d’ilot végétalisé et terrasses plantées, conçus par un paysagiste.

Autres logements T4 du programme "EMBLEME"

Disponibilité Prix Genre Pièces Surface Étage
Voir
Optionné
748 000€ Appt. T4 90.82m2 1er
DO NOT CLICK