214 000€
Appt. au 0-RDC
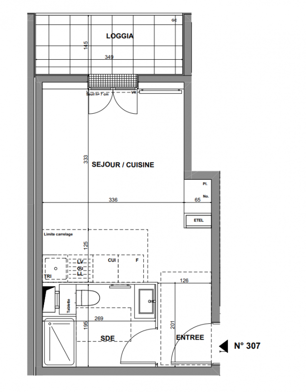
Studio
24.26 m²
Nord
Bourg-la-Reine (92340)
3ème trimestre 2028
01 81 80 39 10
Présentation du programme "LA FAIENCERIE"
À Bourg-la-Reine, devenez propriétaire d'un appartement neuf de qualité au cœur d'une résidence contemporaine à l'architecture soignée ! Découvrez un cadre de vie privilégié où la nature a une place importante notamment grâce à un parc de plus de 8 000 m², situé au pied de la résidence. À quelques pas des écoles, des commerces et des infrastructures de la ville, l’adresse conjugue centralité et quiétude, un équilibre précieux en petite couronne parisienne. La gare RER se situe à 10 minutes à pied. Du studio au 3 pièces, les appartements sont lumineux, prolongés d’un espace extérieur privatif et pensés pour offrir confort, au quotidien. Un environnement privilégié, idéal pour habiter dans cette commune recherchée de la petite couronne parisienne.