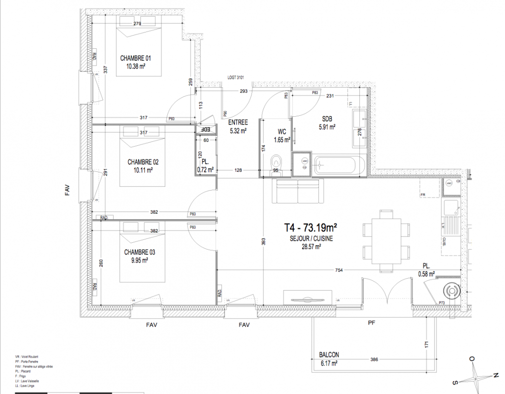
Prix
231 000€
Type
Appt. au 1er
Pièces
T4
Surface
73 m²
Exposition
Est
Ville
Pont-de-Metz (80480)
Livraison
3ème trimestre 2028
Informations
01 81 80 39 10

Présentation du programme "Le Château d'Ô"

Autres logements T4 du programme "Le Château d'Ô"

Disponibilité Prix Genre Pièces Surface Étage
Voir
Disponible
235 583€ Appt. T4 80m2 0-RDC
Voir
Disponible
237 416€ Appt. T4 80m2 0-RDC
DO NOT CLICK