Prix
416 000€
Type
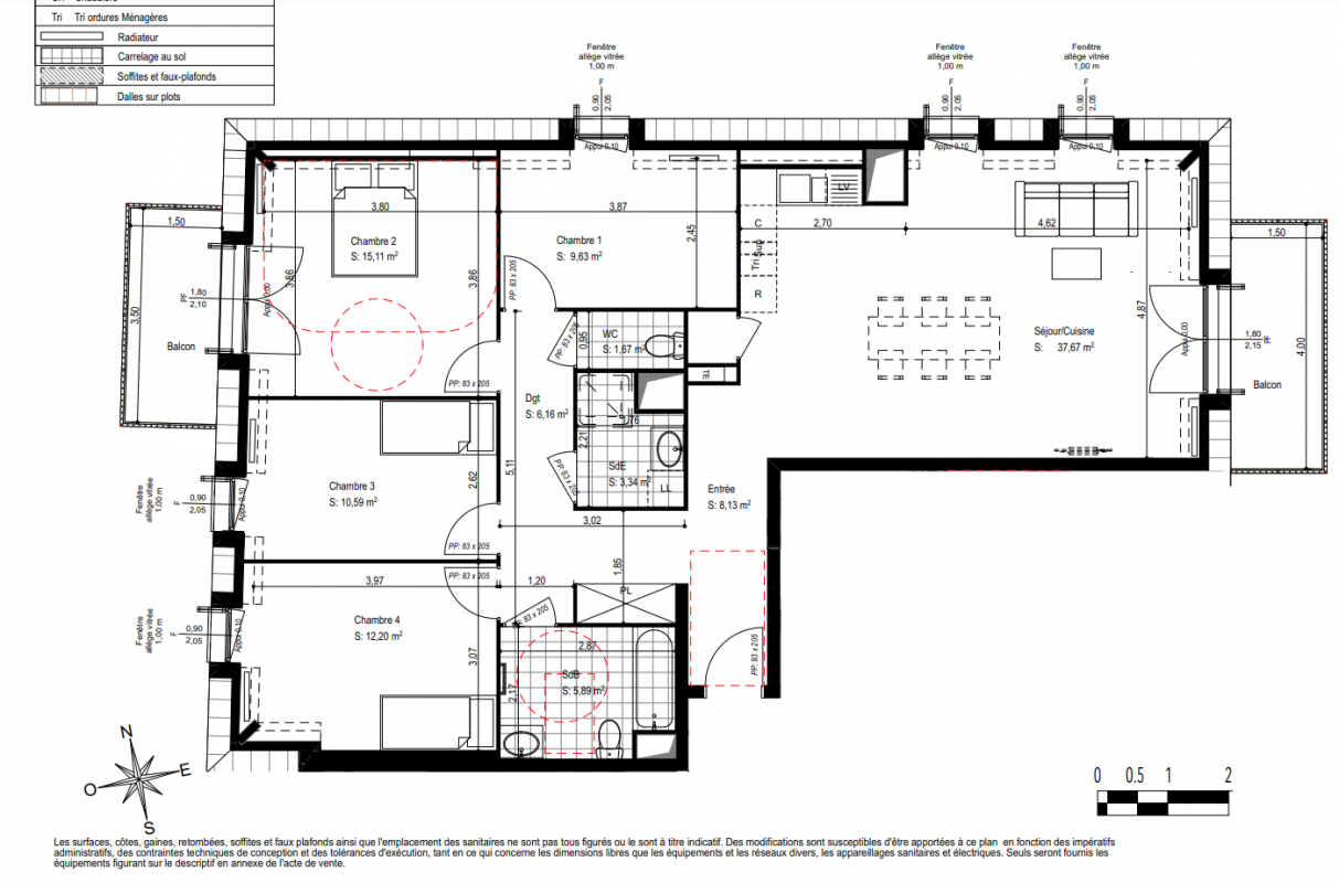
Appt. au 2ème
Pièces
T5
Surface
112.93 m²
Exposition
Est
Ville
Senlis (60300)
Livraison
4ème trimestre 2026
Informations
01 81 80 39 10

Présentation du programme "LE DOMAINE D'ORÉA"

Laissez-vous séduire par la résidence Le Domaine d’Oréa à Senlis signée Vianova, idéalement située aux portes de la région parisienne et à seulement 25 km de l’aéroport de Roissy-Charles de Gaulle.
La pittoresque ville de Senlis est devenue une destination de vie prisée des franciliens en quête de bien-être et d’authenticité. En famille, en couple ou en solo, que ce soit pour y habiter ou bien y réaliser un investissement locatif, Le Domaine d’Oréa propose un large éventail de logements neufs lumineux ouverts sur la nature, adaptés à tous les styles de vie et qui sauront répondre aux attentes du plus grand nombre.
Le bâtiment abritera 27 logements du 2 au 5 pièces, la plupart avec une vue dégagée sur la végétation du cœur d’ilot paysager. Stationnements en sous-sol, jardins, balcons ou terrasses agrémenteront ces appartements qui profitent pour certains de multiples expositions.
Renseignements et informations en appelant Vianova au 01 81 80 39 10.

Autres logements T5 du programme "LE DOMAINE D'ORÉA"

Disponibilité Prix Genre Pièces Surface Étage
Voir
Optionné
430 000€ Appt. T5 117.06m2 2ème
DO NOT CLICK