Prix
282 960€
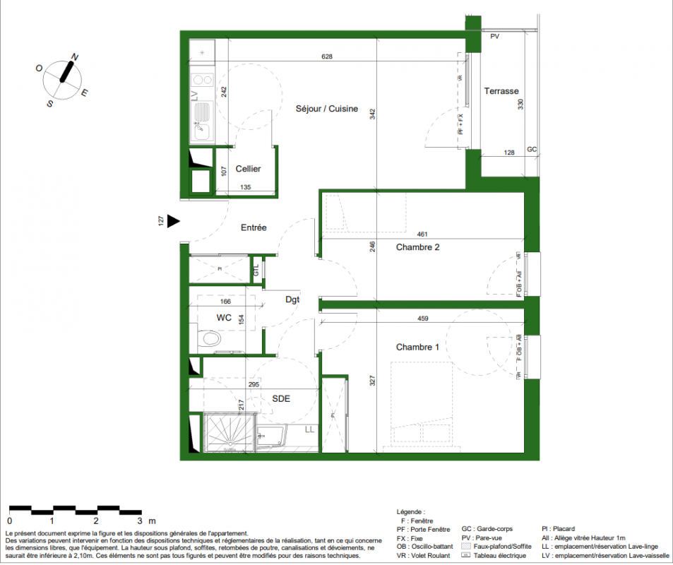
Type
Appt. au 1er
Pièces
T3
Surface
63.17 m²
Exposition
Nord
Ville
Roubaix (59100)
Livraison
2ème trimestre 2026
Informations
01 81 80 39 10

Présentation du programme "L'angora"

Investir à Roubaix, un cadre de vie riche et verdoyant au cœur de la métropole lilloiseSituée au cœur de la métropole lilloise et à proximité immédiate de la Belgique, Roubaix bénéficie d’un emplacement stratégique et attractif.Ville dynamique de 98 089 habitants, elle séduit par son histoire industrielle et son patrimoine architectural riche.Roubaix offre un cadre de vie culturel et verdoyant avec 45 monuments historiques et le parc Barbieux, véritable poumon vert de la ville.Un marché porteur, une demande en pleine expansionLe marché des seniors est en forte croissance, porté par l’allongement de la durée de vie et une demande accrue pour des logements adaptés.Une ville en pleine mutation, idéale pour un investissement locatif pérenne, notamment auprès d’une population senior en quête de confort, de proximité et de services. Commodités / transportsLa résidence L’Angora est idéalement située à proximité immédiate de nombreux commerces et servicesEspaces verts accessibles à pied : parc de la Potennerie et parc Barbieux.Présence d’un centre hospitalier à Roubaix, accessible facilement depuis la résidence.Accès rapide aux grandes villes à 25 min en voiture de Lille et à 1H46 de Bruxelles)Focus prestations / servicesDes appartements spacieux du 2 pièces au 3 pièces, avec balcon ou terrasse, volets roulants électriques, douches accessibles, isolation thermique renforcée.Espaces communs de qualité : 900 m² d’espaces club incluant salon-bar, restaurant avec chef, espace beauté, bassin d’aquagym, salle de sport, espace multimédia, terrasse aménagée.Résidence sécurisée avec assistance 24h/24, caméras, et une équipe dédiée d’une vingtaine de personnes.Le + du programmeUn investissement locatif sécurisé et performant, porté par un exploitant national reconnu.

Autres logements T3 du programme "L'angora"

Disponibilité Prix Genre Pièces Surface Étage
Voir
Disponible
272 640€ Appt. T3 60.86m2 2ème
DO NOT CLICK