Prix
166 000€
Type
Appt. au 1er
Pièces
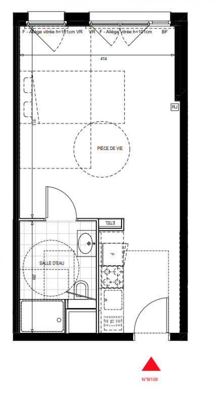
Studio
Surface
33.49 m²
Exposition
Sud
Ville
Thionville (57100)
Livraison
4ème trimestre 2027
Informations
01 81 80 39 10

Présentation du programme "Domaine de la torréfaction"

LES TRAVAUX SONT EN COURS !UNE ADRESSE CONVOITÉE, AU COEUR DU QUARTIER DE LA BRIQUERIEEnvie d’investir ? Cette résidence est éligible au nouveau dispositif d’investissement locatif JEANBRUN, pour constituer un patrimoine, réduire vos impôts et préparer votre retraite ! Résidentiel et très plébiscité, le quartier de la Briquerie bénéficie de toutes les infrastructures nécessaires à la vie quotidienne. Faites le choix de vivre dans un environnement préservé de l'effervescence urbaine à 5 min à pied du centre-ville.
Ici, faites le choix d'un appartement neuf à Thionville, du studio au 5 pièces avec parking pour tous. La majorité des appartements bénéficie d'un bel espace extérieur : balcon ou grande terrasse.Laissez-vous séduire par les prestations de qualité qui sublimeront votre intérieur : Chauffage au sol, carrelage grand format, faïence toute hauteur, volets roulants électriques, stationnement pour l'ensemble des logements, espaces extérieurs généreux.
Envie de parler de votre projet ? Contactez-nous au 06.08.80.33.63.

Autres logements Studio du programme "Domaine de la torréfaction"

Disponibilité Prix Genre Pièces Surface Étage
Voir
Disponible
173 000€ Appt. Studio 33.49m2 5ème
DO NOT CLICK