144 000€ (TVA 20%)
126 600€ (TVA 5.5%)
Appt. au 2ème
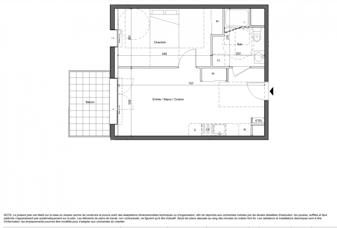
T2
41 m²
Sud-Ouest
Bourges (18000)
4ème trimestre 2027
01 81 80 39 10
Présentation du programme "Le Clos d'Auron"
Découvrez une nouvelle résidence Le Clos d'Auron à Bourges pensée pour vous offrir bien plus qu'un logement : un véritable cadre de vie. Du studio cosy au spacieux 4 pièces, chaque appartement a été conçu pour allier confort, économies d'énergie et qualité de vie. Ascenseur, local vélos, parkings privatifs Tout est là pour simplifier votre quotidien. Étudiants, jeunes actifs, seniors : chacun y trouve sa place. Et pour les plus âgés, un pack 'confort' en option permet d'adapter le logement pour un maintien à domicile en toute sérénité. Vivre ici, c'est choisir la tranquillité d'un quartier agréable, tout en restant proche des commodités et du coeur de Bourges. C'est aussi faire le choix d'un habitat durable, conforme aux dernières normes de construction. Acheter du neuf, c'est bénéficier de nombreux avantages : un logement personnalisable, des garanties constructeur qui vous protègent pendant plusieurs années, des frais de notaire réduits, et pour votre 1er achat, la possibilité de financer une partie de votre bien grâce au prêt à taux zéro ! Pour toutes informations complémentaires, prenez contact avec nous !
Autres logements T2 du programme "Le Clos d'Auron"
| Disponibilité | Prix | No | Genre | Pièces | Surface | Étage | Disponibilité | Prix | ||
|---|---|---|---|---|---|---|---|---|---|---|
| Voir | Disponible | 154 999€ | 1502 | Appt. | T2 | 40m2 | 5ème | Disponible | 154 999€ | Voir |
| Voir | Disponible | 151 999€ | 1407 | Appt. | T2 | 46m2 | 4ème | Disponible | 151 999€ | Voir |
| Voir | Disponible | 151 999€ | 1302 | Appt. | T2 | 42m2 | 3ème | Disponible | 151 999€ | Voir |
| Voir | Disponible | 145 999€ | 1501 | Appt. | T2 | 40m2 | 5ème | Disponible | 145 999€ | Voir |
| Voir | Optionné | 149 999€ | 1307 | Appt. | T2 | 46m2 | 3ème | Optionné Mais pas encore vendu 😉 | 149 999€ | Voir |
| Voir | Disponible | 148 999€ | 1212 | Appt. | T2 | 45m2 | 2ème | Disponible | 148 999€ | Voir |
| Voir | Disponible | 141 000€ | 1505 | Appt. | T2 | 38m2 | 5ème | Disponible | 141 000€ | Voir |
| Voir | Disponible | 148 000€ | 1111 | Appt. | T2 | 45m2 | 1er | Disponible | 148 000€ | Voir |
| Voir | Disponible | 143 999€ | 1408 | Appt. | T2 | 38m2 | 4ème | Disponible | 143 999€ | Voir |
| Voir | Disponible | 146 999€ | 1102 | Appt. | T2 | 42m2 | 1er | Disponible | 146 999€ | Voir |
| Voir | Disponible | 142 000€ | 1308 | Appt. | T2 | 38m2 | 3ème | Disponible | 142 000€ | Voir |
| Voir | Disponible | 139 999€ | 1205 | Appt. | T2 | 39m2 | 2ème | Disponible | 139 999€ | Voir |
| Voir | Disponible | 139 999€ | 1412 | Appt. | T2 | 38m2 | 4ème | Disponible | 139 999€ | Voir |
| Voir | Disponible | 136 999€ | 1002 | Appt. | T2 | 41m2 | 0-RDC | Disponible | 136 999€ | Voir |
| Voir | Optionné | 132 000€ | 1512 | Appt. | T2 | 35m2 | 5ème | Optionné Mais pas encore vendu 😉 | 132 000€ | Voir |
| Voir | Disponible | 141 000€ | 1003 | Appt. | T2 | 49m2 Le bon plan | 0-RDC | Disponible | 141 000€ | Voir |