Prix
268 171€ (TVA 20%)
245 823€ (TVA 10%)
268 171€ (TVA 20%)
245 823€ (TVA 10%)
Type
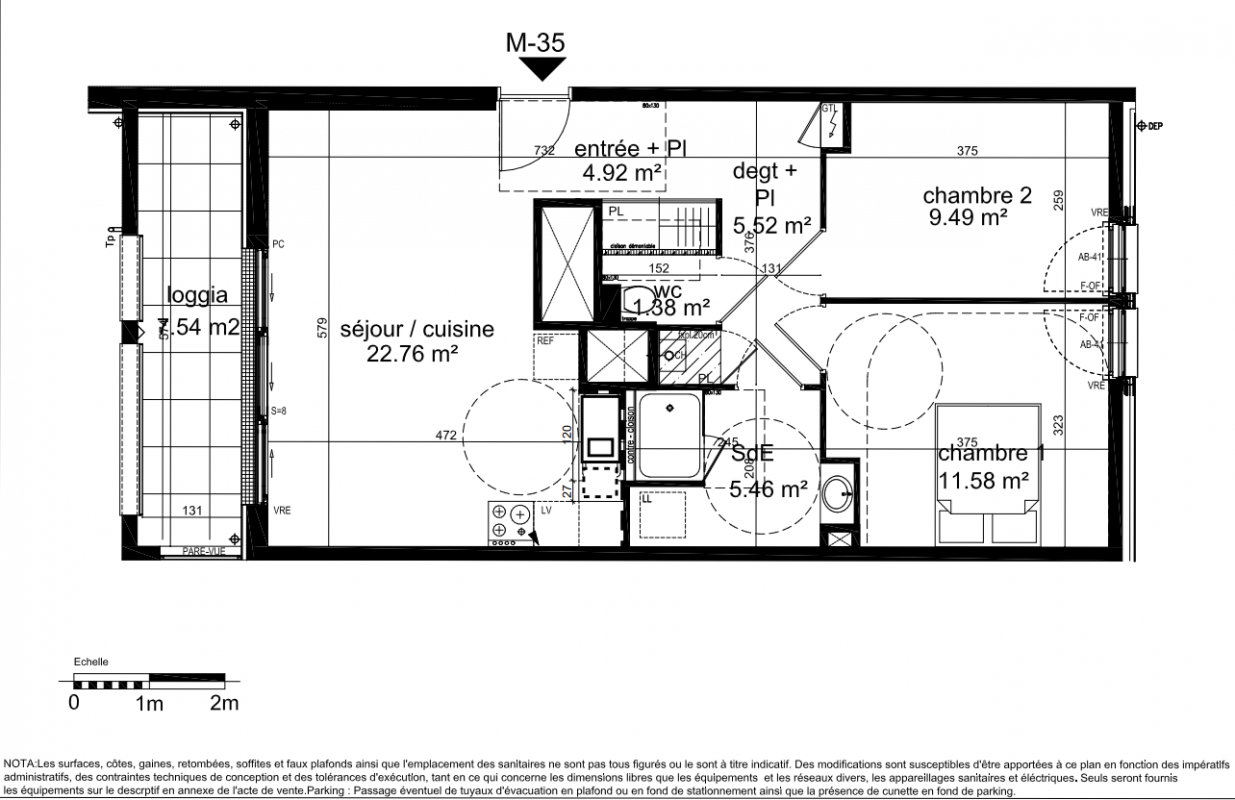
Appt. au 3ème
Appt. au 3ème
Pièces
T3
T3
Surface
61.11 m²
61.11 m²
Exposition
Sud
Sud
Ville
Dinard (35800)
Dinard (35800)
Livraison
1er trimestre 2028
1er trimestre 2028
Informations
01 81 80 39 10
01 81 80 39 10
Présentation du programme "ART DÉCO"
Nouvelle résidence à Dinard, station balnéaire de caractère entre terre et mer, reconnue pour son patrimoine architectural classé et protégé. La résidence "Art Déco" est une adresse unique dans le cœur battant de Dinard, à 10 min à pied de la plage du Prieuré. Imaginée par un grand nom de l’architecture, Ricardo Bofill, la résidence oscille entre hommage à la Belle Époque et style contemporain. Démarrage des travaux imminent (avril 2026). Déductibilité des intérêts d'emprunt.
Autres logements T3 du programme "ART DÉCO"
| Disponibilité | Prix | No | Genre | Pièces | Surface | Étage | Disponibilité | Prix | ||
|---|---|---|---|---|---|---|---|---|---|---|
| Voir | Disponible | 279 958€ | M11 | Appt. | T3 | 66.4m2 Le bon plan | 1er | Disponible | 279 958€ | Voir |
| Voir | Disponible | 264 831€ | M15 | Appt. | T3 | 61.11m2 | 1er | Disponible | 264 831€ | Voir |
| Voir | Optionné | 281 312€ | M21 | Appt. | T3 | 66.4m2 | 2ème | Optionné Mais pas encore vendu 😉 | 281 312€ | Voir |
| Voir | Optionné | 268 171€ | M25 | Appt. | T3 | 61.11m2 | 2ème | Optionné Mais pas encore vendu 😉 | 268 171€ | Voir |