Prix
186 115€ (TVA 20%)
170 605€ (TVA 10%)
186 115€ (TVA 20%)
170 605€ (TVA 10%)
Type
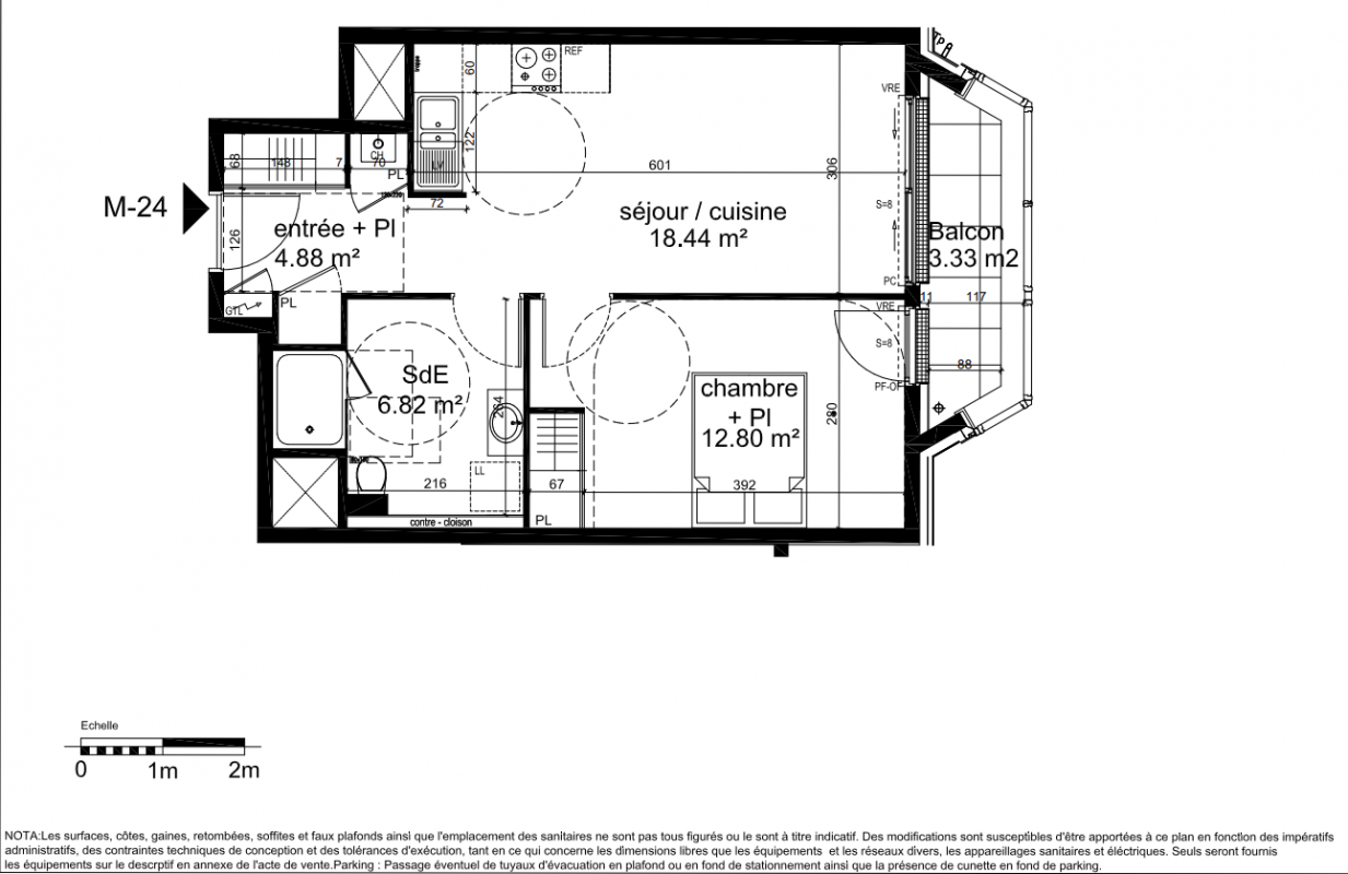
Appt. au 2ème
Appt. au 2ème
Pièces
T2
T2
Surface
42.94 m²
42.94 m²
Exposition
Nord
Nord
Ville
Dinard (35800)
Dinard (35800)
Livraison
1er trimestre 2028
1er trimestre 2028
Informations
01 81 80 39 10
01 81 80 39 10
Présentation du programme "ART DÉCO"
Nouvelle résidence à Dinard, station balnéaire de caractère entre terre et mer, reconnue pour son patrimoine architectural classé et protégé. La résidence "Art Déco" est une adresse unique dans le cœur battant de Dinard, à 10 min à pied de la plage du Prieuré. Imaginée par un grand nom de l’architecture, Ricardo Bofill, la résidence oscille entre hommage à la Belle Époque et style contemporain. Démarrage des travaux imminent (avril 2026). Déductibilité des intérêts d'emprunt.
Autres logements T2 du programme "ART DÉCO"
| Disponibilité | Prix | No | Genre | Pièces | Surface | Étage | Disponibilité | Prix | ||
|---|---|---|---|---|---|---|---|---|---|---|
| Voir | Disponible | 172 355€ | M12 | Appt. | T2 | 39.45m2 | 1er | Disponible | 172 355€ | Voir |
| Voir | Disponible | 213 057€ | M13 | Appt. | T2 | 49.83m2 | 1er | Disponible | 213 057€ | Voir |
| Voir | Disponible | 185 239€ | M14 | Appt. | T2 | 42.94m2 | 1er | Disponible | 185 239€ | Voir |
| Voir | Optionné | 173 159€ | M22 | Appt. | T2 | 39.45m2 | 2ème | Optionné Mais pas encore vendu 😉 | 173 159€ | Voir |
| Voir | Disponible | 214 073€ | M23 | Appt. | T2 | 49.83m2 | 2ème | Disponible | 214 073€ | Voir |
| Voir | Optionné | 186 115€ | M34 | Appt. | T2 | 42.94m2 | 3ème | Optionné Mais pas encore vendu 😉 | 186 115€ | Voir |