Prix
154 000€
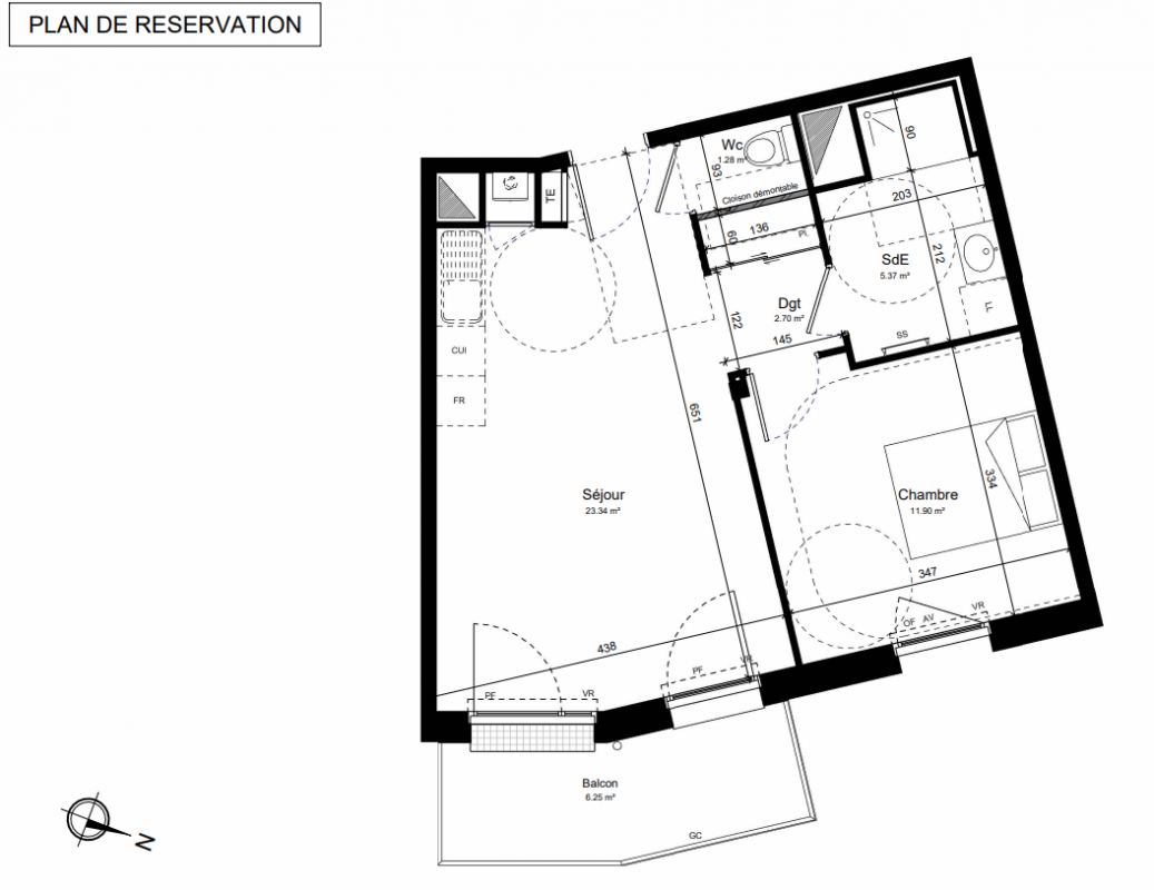
Type
Appt. au 2ème
Pièces
T2
Surface
44 m²
Exposition
Nord-Est
Ville
Guilvinec (29730)
Livraison
4ème trimestre 2027
Informations
01 81 80 39 10

Présentation du programme "KER LOHAN"

Au Guilvinec, votre appart neuf à partir de 460,27 euros par mois (1) pendant les 3 premières années (le montant affiché tient compte de l'offre commerciale) + FRAIS DE NOTAIRE OFFERTS (2) jusqu'au 31 mars 2026.TRAVAUX EN COURS - Au Guilvinec, embarquez pour une nouvelle adresse rare et authentique.

Au sud du pays bigouden, dans l'un des ports les plus séduisants du Finistère, et à seulement 30 kilomètres de la gare TGV de Quimper.

Au calme de son quartier résidentiel qui signe la renaissance du premier port de pêche artisanale français, les 2 bâtiments collectifs de KER LOHAN s'inscrivent au coeur de la ville portuaire et offrent un accès à la plage de la Grève Blanche à 700 m et au centre commerçant animé à seulement 350 m.

Avec des appartements de 2 à 3 pièces personnalisables prolongés d'un balcon ou d'une terrasse en rez, découvrez dès maintenant votre nouvelle adresse principale, de villégiature ou pour investir en LMNP non-gérée avec notre solution de packs meublés et service de conciergerie possible.

Autres logements T2 du programme "KER LOHAN"

Disponibilité Prix Genre Pièces Surface Étage
Voir
Disponible
154 799€ Appt. T2 44m2 0-RDC
Voir
Disponible
153 199€ Appt. T2 43m2 1er
Voir
Disponible
161 999€ Appt. T2 44m2 1er
Voir
Disponible
151 999€ Appt. T2 44m2 1er
Voir
Disponible
163 999€ Appt. T2 43m2 2ème
Voir
Disponible
154 000€ Appt. T2 43m2 2ème
Voir
Optionné
163 999€ Appt. T2 43m2 2ème
DO NOT CLICK