138 000€
Appt. au 2ème
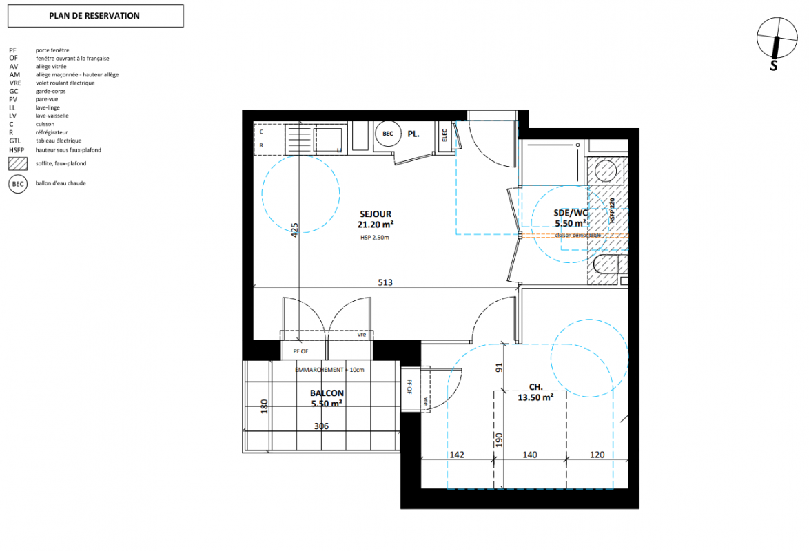
Studio
34.9 m²
-
Hillion (22120)
1er trimestre 2028
01 81 80 39 10
Présentation du programme "CLOS RONAN"
[ - NOUVEAU A HILLION - ] Découvrez nos appartements neufs dans le quartier recherché de Saint-René à Hillion !
SPÉCIAL INVESTISSEURS – Profitez du nouveau Dispositif JEANBRUN : optimisez votre fiscalité et accélérez votre patrimoine.
Le CLOS RONAN est une nouvelle résidence intimiste nichée au cœur du bourg de Saint-René, à seulement 15 minutes de Saint-Brieuc et 10 minutes de Lamballe. Un cadre de vie privilégié entre nature, mer et services de proximité : commerces, écoles, collège, transports.
La résidence propose 22 appartements du T1 Bis au T3, tous prolongés d’un balcon ou d’une terrasse, avec stationnement privatif, ascenseur, locaux vélos sécurisés et accès sécurisé par vidéophone. Les prestations intérieures sont axées sur le confort avec des équipements de dernière génération, des marques de qualité et des finitions soignées.
Implanté dans les murs en pierre de l’ancien presbytère, le programme allie charme patrimonial et architecture contemporaine, dans un écrin paysager calme et convivial. Une adresse idéale pour devenir propriétaire grâce au PTZ ou investir en LMNP, et s’offrir une vie douce à la croisée de la baie de Saint-Brieuc et des plaisirs simples du quotidien.
Contactez nos conseillers pour en savoir plus sur ces nouvelles opportunités ou rendez-vous sur Vianova.fr.