Prix
343 000€
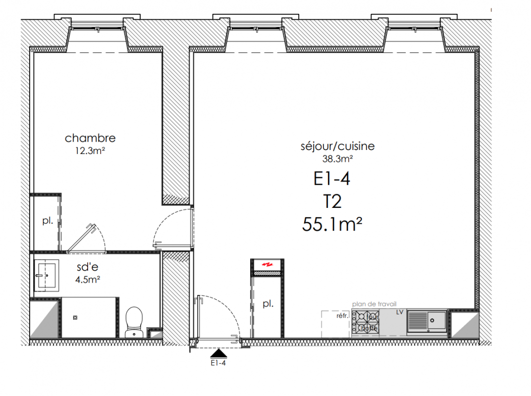
Type
Appt. au 1er
Pièces
T2
Surface
55.1 m²
Exposition
-
Ville
Dinan (22100)
Livraison
4ème trimestre 2027
Informations
01 81 80 39 10

Présentation du programme "CASERNE BEAUMANOIR - Aile Est"

Pièce maîtresse du patrimoine militaire breton, longue de 120 mètres, la caserne Beaumanoir fut érigée en 1875 pour acceuillir le 24ème régiment de Dragons et le 12ème régiment de Hussards.Endormi depuis 2001 et le départ des derniers soldats, cet édifice monumental en granit s'apprête à reprendre vie. Aux portes de Saint-Malo et Dinard, et à 40 minutes de Rennes, cette citée médiévale de renommée internationale acceuille chaque année plus de 700 000 visiteurs.A quelques pas de la gare TER de Dinan, la Caserne Beaumanoir propose désormais des logements de standing et bureaux, avec tous les services et activités sportives à proximité.

Autres logements T2 du programme "CASERNE BEAUMANOIR - Aile Est"

Disponibilité Prix Genre Pièces Surface Étage
Voir
Disponible
330 000€ Appt. T2 54.9m2 3ème
DO NOT CLICK